Luca D'Onofrio 338/466.09.87
Italiano

🏡 Villetta a Schiera a Merine - Via Campania


230.000 €
177 m2
3 Camere
2 Bagni
🏡 Villetta a Schiera a Merine - Via Campania

📞 Contattaci per visitare l’immobile.

Questa spaziosa villetta a schiera, edificata nel 2005, vanta una superficie catastale complessiva di 177 mq.

📍 Situata in una zona residenziale di Merine, a pochi minuti da Lecce, l’abitazione si sviluppa su due livelli ed è caratterizzata da totale indipendenza e assenza di spese condominiali e dalla proprietà esclusiva dell'area solare. L’accesso avviene tramite uno scoperto di proprietà esclusiva.

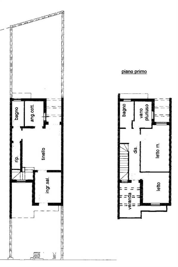
L'abitazione è composta da:
⬇️ Piano Terra:
• Ingresso / ampio soggiorno
• Cucina
• Bagno
• Ripostiglio
• Veranda retrostante con scoperto

⬆️ Piano Primo:
• Tre camere da letto
• Bagno
• Balcone con affaccio su strada

🛠 L’immobile si presenta in buone condizioni generali, pronto ad accogliere i nuovi proprietari. Gli ambienti sono climatizzati e rifiniti. Gli infissi sono in legno con vetrocamera, completi di grate su ogni finestra e persiane in alluminio con lamelle orientabili.

🌳 La presenza dello scoperto privato all'ingresso e della veranda con scoperto sul retro offre spazi esterni esclusivi, perfetti per momenti di relax all'aria aperta o per chi ha animali domestici.
La totale autonomia e la disposizione degli spazi rendono questa villetta un'ottima opportunità abitativa per famiglie.

💰 Il prezzo richiesto è di Euro 230.000,00.

📧 Per ulteriori dettagli ed informazioni o per prenotare una visita, non esitare a contattare l'Agenzia Immobiliare Luca D'Onofrio:

📱 Tel: 338.466.09.87
📩 Email: agenziadonofrio@gmail.com
🌐 Sito Web: www.agenziadonofrio.eu
Caratteristiche principali
Codice
V000944
Città
Lizzanello (Merine)
Categoria
Villetta schiera
Locali
7
Camere
3
Bagni
2
Mq
177
Mq Giardino
115
Balconi
2
Piano
Terra
Classe energetica
E
Stato Immobile
Buono
Grado
Medio
Lati Liberi
2
Giardino
Privato
Tipo Soggiorno
Soggiorno
Tipo Cucina
Cucinotto
Riscaldamento
Autonomo
Tipo Riscaldam.
Caldaia
Tipo Impianto
Radiatori
Fonte Energetica
Metano
Acqua Calda
Autonoma
Raffrescamento
Split
Infissi
Legno Doppio Vetro
Serramenti
Buono
Persiana
Persiana Metallo
Accessori
Antifurto, Aria Condizionata, Doppi Vetri
Mappa
Via Campania 4, Lizzanello (LE)
Video
Planimetrie
Photo 44
Cookie preference