Luca D'Onofrio 338/466.09.87
Italiano

Vendita villetta a schiera – Merine


250.000 €
266 m2
3 Camere
3 Bagni
1 Box
🏡 Vendita villetta a schiera – Merine
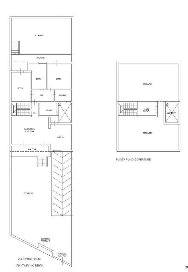
📍 Indirizzo: Via Pietro Nenni, 19 – Merine di Lizzanello

💰 Prezzo richiesto: Euro 250.000

📏 Superficie catastale:

• Piano terra: 130 mq
• Piano seminterrato: 136 mq (compreso box)
🌿 Spazi esterni: circa 250 mq di scoperto tra area antistante e retrostante

🏗 Anno di costruzione: 2005

☀ Area solare di proprietà esclusiva
________________________________________

📐 Composizione dell’immobile

Piano terra:
✔ Open space con camino
✔ Cucina abitabile a vista
✔ Disimpegno
✔ Due bagni finestrati con doccia
✔ Camera matrimoniale
✔ Due camere singole
✔ Pozzo luce / lavanderia
✔ Scoperto antistante e retrostante di pertinenza esclusiva

Piano seminterrato:
✔ Ampia tavernetta con camino
✔ Bagno
✔ Cantinola
✔ Box auto con portoncino nuovo in alluminio
________________________________________

🏡 Caratteristiche principali:
• Villetta a schiera in buone condizioni
• Doppio camino (zona giorno e tavernetta)
• Infissi in legno con vetrocamera
• Persiane in legno
• Climatizzatori
• Ampi spazi interni ed esterni
• Area solare di proprietà con possibilità di installazione pannelli fotovoltaici
________________________________________

🔹 Perché acquistarla:
• Soluzione ideale per famiglie
• Spazi generosi e ben distribuiti
• Zona tranquilla e ben collegata a Lecce
• Buono stato manutentivo
• Ampia metratura con ambienti versatili
________________________________________

📢 Non perdere questa opportunità!
Se stai cercando una casa pronta da vivere, con ampi spazi interni ed esterni, questa è la soluzione ideale per te.

Le occasioni come questa non restano a lungo sul mercato!

📞 Contattaci oggi stesso per ricevere maggiori informazioni o per prenotare una visita.

📧 agenziadonofrio@gmail.com
📞 338.466.09.87
Caratteristiche principali
Codice
V000942
Città
Lizzanello (Merine)
Categoria
Villetta schiera
Locali
7
Camere
3
Bagni
3
Mq
266
Box
1
Mq Giardino
250
Balconi
2
Piano
Terra
Classe energetica
E
Stato Immobile
Buono
Lati Liberi
2
Giardino
Privato
Tipo Soggiorno
Soggiorno
Tipo Cucina
Abitabile
Riscaldamento
Autonomo
Tipo Riscaldam.
Caldaia
Tipo Impianto
Radiatori
Fonte Energetica
Metano
Acqua Calda
Autonoma
Raffrescamento
Split
Infissi
Legno Doppio Vetro
Accessori
Aria Condizionata, Camino, Doppi Vetri, Lavanderia, Porta Blindata
Mappa
via Pietro Nenni 19, Lizzanello (LE)
Video
Planimetrie
Photo 52
Photo 52
Cookie preference